044 594-30-30
01014 Украина, г. Киев,
бульв. Леси Украинки, 29
ID: 240

Аренда в новом ТЦ Mark Mall г.Бровары, ул. Киевская, 239

Цена: 918 $
Цена за м²: 14 $
Раздел: Аренда
Тип объекта: Комерч.недвижимость
Состояние: Идеальное
Количество комнат: 0
Площадь объекта: 68 м2
Caнузел: Раздельный
Этаж: 2
Этажность: 2
не угловая
Адрес: город Бровары, Киевская область Киевская,
Телефон риелтора: 096-654-89-89 (Піддубняк Юлія Михайлівна)
Версия для печати

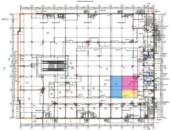
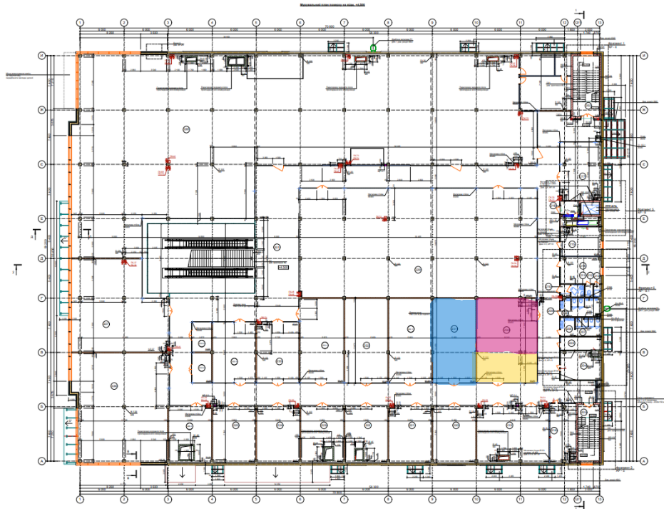
Сдаем торговые площади в новом торговом центре, который открылся 22 ноября 2019 года. Цена: 2 эт. по 600 грн. за кв.м. с НДС + эксплуатационные 110,80 грн./кв.м. Островки 12 000 грн. за островок 5 кв.м. с комун. Планы во вложении. Помещения все уже с ремонтом.

Соседями буду: McDonalds, Eva, Tardi outlet, тур оператор Megatour, Rozetka, Woka-кафе, ювелирка Диамант, Столичная ювелирная фабрика, аптека Viridis, супермаркет Varus, зоотовары и др.

Голубой – 68 кв. м, желтый – 32,5 кв. м, розовый – 58 кв. м

Поиск